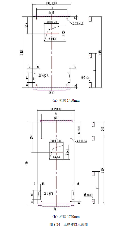
12 KV手车类型开关柜标准化设计定制方案(2019年版
12 KV手车类型开关柜标准化设计定制方案(2019年版详细资料由专业的低压开关柜、低压配电柜、低压配电箱报价厂家为您提供。
12 KV手车类型开关柜标准化设计定制方案(2019年版)
2019 11
11
1.资质审查项目名称:“2019年新建住宅区供配电设施建设项目材料供应商参考目录”和“国家电网福建电力有限公司2019年集体企业材料框架协议一期入围供应商名单”资质审查项目。
2.次标准编号:XMYS-JP190005





















2




























































信息来源(国家电网)
更多选型规格报价定制等问题可及时联系厂家,以上就是12 KV手车类型开关柜标准化设计定制方案(2019年版全部内容。

 
 
  
  
  
 