三级分配总和配电箱和施工要求
三级分配总和配电箱和施工要求详细资料由专业的低压开关柜、低压配电柜、低压配电箱报价厂家为您提供。
本配电箱(柜)适用于施工现场及室外临时用电,应满足“三级配电、二级漏电保护、一机一闸、一漏一箱”配电保护的使用要求。
一.基本要求
(1) 配电箱(机柜)应按照《低压成套开关设备和控制设备》GB7251.4第四部分规定的施工现场成套设备(ACS)的特殊要求和《施工现场临时用电安全技术规范》JGJ42005的标准要求制造。
(2) 配电箱(柜)、开关箱的安装和使用应符合《施工现场临时用电安全技术规范》JGJ42005标准和《用电安全导则》GB/T13869的标准化要求。
(3) 配电箱(柜)、开关箱应设置N线、PE线端子板,进出线必须通过端子板可靠连接。N线端子板必须与金属电气安装板绝缘。聚乙烯线路端子板必须与金属电器安装板电连接。进线和出线中的N线必须通过N线端子板连接;聚乙烯线路必须通过聚乙烯线路端子板连接。聚乙烯线路和端子板之间的连接必须采用电气连接。电气连接点的数量应该比盒子中的回路数量多2个。一个是PE线进入接线盒的连接点,另一个是重复接地的连接点。
(4)电气元件应是符合GB/4048.2001、GB6829和JGJ42005标准的产品,并符合建设部“十一五”期间推广应用的技术要求。
第二,总数配电箱(机柜)
主开关设置DZ20型透明塑壳断路器,隔离功能为400A-630A,分路设置8路。采用具有隔离功能的DZ20系列160A-250A透明塑壳断路器,配备DZ20L(DZ15L)或LBM-1系列漏电保护装置,具有欠压、过载、短路、漏电和断相保护功能。同时,还配备了两套电流容器,即电度表、电压表和电流表。漏电保护装置的额定漏电动作电流与额定漏电动作时间的乘积不大于30mA。S,较好选择额定漏电动作电流为100-200毫安,额定漏电动作时间大于0.1S,动作时间为延时动作类型。
总计配电柜示意图

总计配电柜端子板节点图
总计配电柜机柜门电气连接节点图
四回路配电柜电气系统图

六个电路配电柜电气系统图
三、分配电箱(电源电路和照明电路分流分配)
DZ20系列透明塑壳断路器,内置200A-250A隔离功能,作为主开关(适用于total 配电箱并联断路器);电源分路和照明分路控制开关采用DZ20或KDM-1型透明塑壳断路器。DZ20或KDM-1透明塑壳断路器用作每个配电电路的控制开关。PE线连接螺栓和N线连接螺栓根据实际需要配置。

点配电箱示意图

点配电箱PE,N线端子板节点图

点配电箱箱门电气连接节点图

点配电箱电气系统图
四、开关箱(按一机一闸一漏一箱设置)
(一)电焊机开关箱
DZ20-100/2系列或KDM 100/2 (100A,380V)透明塑料外壳断路器作为控制开关,DZ15LE-100/2 (DZ20L-100/2)或LBM
100/2 (100A)漏电断路器,BFGD系列二次触电保护器;聚乙烯接线盒由3个连接螺栓组成。

电焊机开关箱示意图

电焊机开关箱PE线端子板、箱门电气连接节点图

电焊机电气系统图
(2)塔式起重机开关箱

塔式起重机开关箱示意图

塔式起重机开关箱端子板、箱门电气连接节点图

(3)3.0千瓦以下电力设备开关箱
控制开关采用内部KDM1或DZ20(20-40A,380V)透明塑壳断路器,配置DZ15LE、DZ20L或LBM-1(120A)系列漏电断路器,PE线端子排为4个连接螺栓。
(四)5.5千瓦以上电力设备开关箱
根据受控设备的额定容量选择控制开关和漏电断路器。控制开关为DZ20或KDM1系列透明塑壳断路器,漏电断路器为DZ15L、DZ20L或LBM-1系列;有3个聚乙烯电线连接螺栓。

设备开关箱示意图

设备开关箱PE线端子板与箱门电气连接节点图

设备开关箱电气系统图
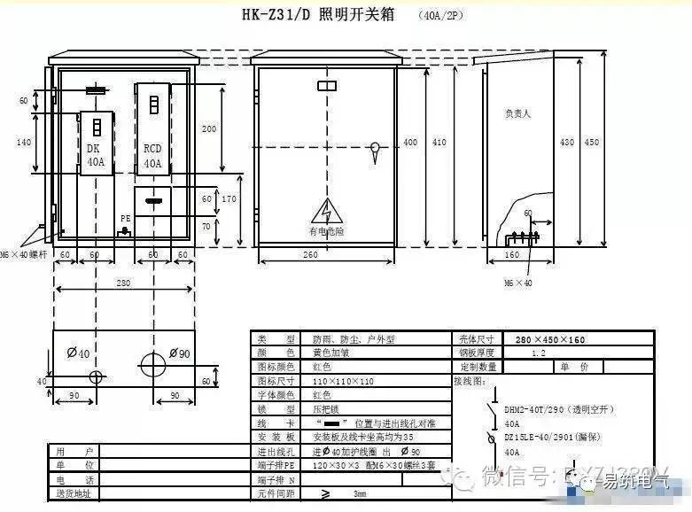
(5)照明开关箱
配有KDMT/2 (20-40A)断路器、DZ15L-20-40/290漏电断路器和3个聚乙烯线路螺栓。

照明开关箱示意图

照明开关箱电气系统图
注:开关箱内漏电断路器必须选用额定漏电动作电流不大于30mA、额定漏电动作时间不大于0.1S、电流速断和电磁电机保证产品。total 配电箱中型漏电断路器应为配电保护产品。
五、配电室布局应符合下列要求:
(1) 配电柜前操作通道宽度,单排或双排背靠背布置不小于1.5m,双排面对面布置不小于2m;
(2) 配电柜后面的维修通道宽度,单排布置或双排面对面布置不小于0.8m,双排背对背布置不小于1.5m,如果某些地方有建筑结构突出部分,此时通道宽度可减少0.2m:
(3) 配电柜侧维修通道的宽度不得小于1m;
(4)配电室屋顶与地面的距离不得小于3m。
六、配电箱架设应符合下列要求:
(一)固定配电箱,开关箱盒中心与地面垂直距离为1.1.6 m..移动盒与地面的垂直距离为0.8—1.6m..配电箱时,开关箱应安装在牢固稳定的支架上。
(2) 配电箱,开关箱在建筑物下降半径或塔吊臂旋转半径内必须做双层防护棚,并有隔离措施。
更多选型规格报价定制等问题可及时联系厂家,以上就是三级分配总和配电箱和施工要求全部内容。
