如何分配现场临时用电?配电箱使用规范详细信
如何分配现场临时用电?配电箱使用规范详细信详细资料由专业的低压开关柜、低压配电柜、低压配电箱报价厂家为您提供。
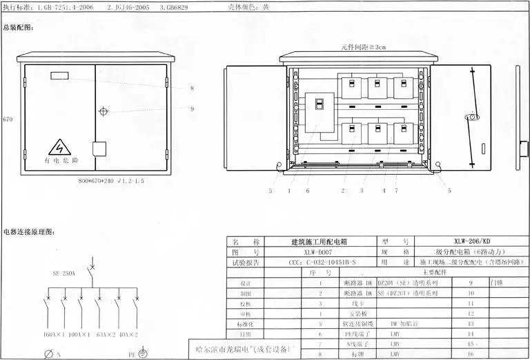
配电箱(柜)适用于施工现场和室外临时用电,应满足“三级配电、二级漏电保护、一机一闸、一漏一箱”配电保护的使用要求。配电箱(柜)、开关箱的材料选择、制造工艺、箱内电气元件的选择和配置应符合相关国家标准,产品应通过CCC认证。配电箱(机柜)外壳由冷轧钢板制成,防雨、防尘、户外。钢板厚度符合标准要求,经久耐用。
配电箱(柜)、开关箱应分为N线、PE线端子板,进出线必须通过端子板可靠连接。N线端子板必须与金属电气安装板绝缘。聚乙烯线路端子板必须与金属电气安装板电连接。进线和出线中的N线必须通过N线端子板连接;聚乙烯线路必须通过聚乙烯线路端子板连接。聚乙烯线路和端子板之间的连接必须采用电气连接。电气连接点的数量应该比盒子中的回路数量多2个。一个是PE线进入接线盒的连接点,另一个是重复接地的连接点。
三级配电设置示例
一个
总计配电箱(机柜)
主开关设置DZ20型透明塑壳断路器,隔离功能为400A-630A,分路设置8路。采用具有隔离功能的DZ20系列160A-250A透明塑壳断路器,设置DZ20L(DZ15L)透明漏电开关或LBM-1系列作为漏电保护装置,具有欠压、过载、短路、漏电和断相保护功能,同时配备电能表、电压表、电流表和两组电流互感器。漏电保护装置的额定漏电动作电流与额定漏电动作时间的乘积不应大于30毫安秒,较好选择额定漏电动作电流为7150毫安,额定漏电动作时间大于0.1S且小于等于0.2S,动作时间为延时动作类型。
总计配电柜示意图
总计配电柜端子板接触图
总计配电柜机柜门电气连接点图
四回路配电柜电气系统图
六个电路配电柜电气系统图
八个电路配电柜电气系统图
二
得分配电箱
1包括照明电路分配电箱(电源电路和照明电路分流配电)
DZ20系列透明塑壳断路器,内置200A-250A隔离功能,作为主开关(适用于total 配电箱并联断路器);电源分路和照明分路控制开关采用DZ20或KDM-1型透明塑壳断路器。DZ20或KDM-1透明塑壳断路器用作每个配电电路的控制开关。PE线连接螺栓和N线连接螺栓应根据实际需要配置。
点配电箱示意图
点配电箱N线端子板接触图
点配电箱聚乙烯线端子板接触图
点配电箱电气系统图
包括塔吊回路分配电箱示意图
(端子板触点和电气连接点的示意图同上)
包括塔吊回路点配电箱系统图
2不包括照明电路点配电箱
8个电路点配电箱原理图
6个电路点配电箱包括塔式起重机电路
(端子板触点和电气连接点的示意图同上)
8个循环点配电箱系统图
6回路包括塔吊回路配电箱系统图
三
开关盒(一台机器,一个制动器,一个泄漏,一个盒子)
地面泵等大型设备的电源开关箱
配备KDM1或DZ20(160 A及380V以上)系列透明塑壳断路器作为控制开关,配置DZ20L系列透明漏电断路器或LBM-1系列漏电断路器。聚乙烯线路端子排由3个连接螺栓组成。
地泵等大型设备开关箱示意图
地泵等大型设备电气系统图
2塔吊等设备电源开关箱
配备KDM1或DZ20(160 A及380V以上)系列透明塑壳断路器作为控制开关,配置DZ20L系列透明漏电断路器或LBM-1系列漏电断路器。聚乙烯线路端子排由3个连接螺栓组成。
塔式起重机及其他设备电源开关箱示意图
塔式起重机等动力设备的开关箱系统图。
3.0千瓦以下电气设备开关箱
DZ20(40A,380V)或SE、KDMI系列透明塑料外壳断路器作为控制开关,DZ15LE(40A)或LBM1系列透明漏电断路器,PE线端子排为4个连接螺栓。
40A以下电源开关箱示意图
电源开关箱端子触点和电气触点连接图
40A以下设备电气开关箱电气系统图
4 5.5千瓦以上电气设备的开关箱
根据受控设备的额定容量选择控制开关和漏电断路器。控制开关为DZ20(SE或KDM1)系列透明塑料外壳断路器,漏电断路器为DZ15L系列透明串联漏电断路器。聚乙烯电线连接有3个螺栓。
2
5.5千瓦以上设备开关箱示意图
5.5千瓦以上设备开关箱电气系统图
5照明开关盒
配有KDMT/2 (40A)断路器、DZ15L40/290-40/290漏电断路器和3个聚乙烯线螺栓。
照明开关箱示意图
照明开关箱电气系统图
注:开关箱内漏电断路器必须选用额定漏电动作电流不大于30mA、额定漏电动作时间不大于0.1S、电流速断和电磁电机保证产品。
total 配电箱中型漏电断路器应为配电保护产品。
配电室布局应符合下列要求
(1) 配电柜前方作业通道宽度,单行或双排背靠背布置不小于1.5m,双排面对面布置不小于2m。
(2) 配电柜后面的维修通道宽度,单行布置或双排面对面布置不小于0.8m,双排背靠背布置不小于1.5m,如果某些地方有建筑结构突出部分,该通道宽度可减少0.2m..
(3) 配电柜侧维修通道的宽度不得小于1m。
(4)配电室屋顶与地面的距离不得小于3m。
配电箱安装应满足以下要求
(a)固定配电箱,开关箱盒中心与地面垂直距离为1.4~1.6m..移动盒与地面的垂直距离为0.8~1.6m..配电箱时,开关箱应安装在牢固稳定的支架上。
(2) 配电箱,开关箱在建筑物下降半径或塔吊臂旋转半径内必须做双层防护棚,并有隔离措施。
【附件】施工临时用电管理要点
一个
临时用电管理
(一)施工现场操作电工必须按现行国家标准考试合格,持证上岗。
(二)各类用电用户必须通过相关安全教育培训和技术交底,掌握安全用电的基本知识和所用设备的性能,考试合格后方可上岗。
(三)临时电气设备和线路的安装、检查、维护或拆除必须由电工完成,并应有人监护。
(四)临时用电组织设计的规定:
1)施工现场临时用电设备5台以上或总容量50kW以上时,应编制用电组织设计;否则,应制定安全用电和电气防火措施。
2)装饰装修工程或其他特殊施工阶段,应编制单项施工用电方案。
(5)临时用电机构的设计和变更必须由电气工程技术人员编制,经有关部门审核,法人企业技术负责人批准,经现场监理签字认可后实施。
(六)临时用电项目必须经编制、审批部门和使用单位共同验收,合格后方可投入使用。
(7)临时用电项目应按分部分项工程进行定期检查。必须及时处理安全隐患,并执行复验和验收程序。
(8)室外220伏灯具离地面不得小于3米,室内不得小于2.5米..
二
强制性条款
《施工现场临时用电安全技术规范》JGJ42005的强制性规定:
(1)施工现场临时供电工程中性点直接接地的220/380伏三相四线制低压电力系统必须满足以下要求:采用三级配电系统;采用全自动零保护系统;采用二次漏电保护系统。
(2)施工现场使用专用变压器、TN-S接零保护供电系统时,电气设备的金属外壳必须与保护零线连接。保护零线应从工作接地线、配电室(总计配电箱)电源侧零线或总漏电保护器电源侧零线引出。
(3)当施工现场与外部电路共用同一供电系统时,电气设备的接地和接零保护应与原系统保持一致,设备的任何部分不得接零保护,另一部分应接地保护。
(4)TN-S系统中的保护零线必须在配电室或total 配电箱处重复接地,也必须在配电系统的中部和端部重复接地。
(5) 配电柜应安装电源隔离开关和短路、过载和漏电保护器。电源隔离开关关闭时,应有明显的断点。
(6) 配电箱电气安装板必须分为N线端子板和PE线端子板。N线端子板必须与金属电气安装板绝缘。聚乙烯线路端子板必须与金属电气安装板电连接。
(7) 配电箱,开关箱电源入口端严禁使用插头和插座主动连接。
(8)清理、检查和维护混凝土搅拌机、钢筋加工机械、木工机械、盾构机械等设备时,必须关闭开关箱,电源断开点清晰可见,门必须关闭并上锁。
(九)下列特殊场所应使用安全低压照明器:
1)电源电压不应大于36V用于隧道、人防工程、高温、导电粉尘、潮湿或距离地面2.5m以下的灯具等场所的照明。
2)电源电压不大于24V用于潮湿和易接近带电体的照明。
3)在特别潮湿的地方、导电地面、锅炉或金属容器内照明时,电源电压不得大于12V。
(十)照明变压器必须使用双绕组式安全隔离变压器,严禁使用自耦变压器。
(11)在建工程和影响飞机或车辆夜间通行的机械设备,必须设置醒目的红色信号灯。电源应位于施工现场主电源开关的前侧,外部电路电源停止时应设置应急自备电源。
资料来源:中国化工协会济源安全上饶网综合整理
更多选型规格报价定制等问题可及时联系厂家,以上就是如何分配现场临时用电?配电箱使用规范详细信全部内容。
- 上一篇:安全|任何敢在配电箱之前堆东西的人都会给他看
- 下一篇:不到1个月5 配电箱撬开
