最完整的施工现场临时用电配电箱(机柜)标准化配
戳蓝色的单词“朱龙电气”,注意我们!
资料来源:朱龙论坛
如有侵权,请联系删除
本系列配电箱(柜)适用于施工现场及室外临时用电,应满足“三级配电、二级漏电保护、一机一闸、一漏一箱”配电保护的使用要求。配电箱(柜)、开关箱的材料选择、制造工艺、箱内电气元件的选择和配置应符合国家相关标准和建设部关于“十一五”期间技术推广应用的规定。产品应通过CCC认证。配电箱(机柜)外壳由冷轧钢板制成,防雨、防尘、户外型。钢板厚度符合JGJ-2005标准,经久耐用。
1
基本要求
(1) 配电箱(机柜)应按照《低压成套开关设备和控制设备》GB7251.4第四部分规定的施工现场成套设备(ACS)的特殊要求和《施工现场临时用电安全技术规范》JGJ42005的标准要求制造。
(2) 配电箱(柜)、开关箱的安装和使用应符合《施工现场临时用电安全技术规范》JGJ42005标准和《用电安全导则》GB/T13869的标准化要求。
(3) 配电箱(柜),开关箱应分为N线、PE线端子板,进出线必须通过端子板可靠连接。N线端子板必须与金属电气安装板绝缘。聚乙烯线路端子板必须与金属电气安装板电连接。进线和出线中的N线必须通过N线端子板连接;聚乙烯线路必须通过聚乙烯线路端子板连接。聚乙烯线路和端子板之间的连接必须采用电气连接。电气连接点的数量应该比盒子中的回路数量多2个。一个是PE线进入接线盒的连接点,另一个是重复接地的连接点。
(4)电气元件应是符合GB/14048.2001、GB6829和JGJ42005标准的产品,并符合建设部“十一五”期间推广应用的技术要求。
2
总计配电箱(机柜)
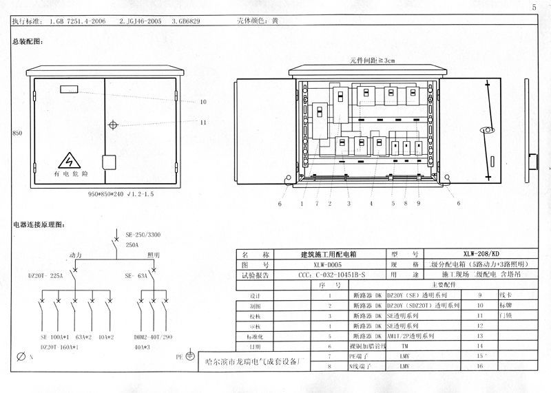
主开关设置DZ20型透明塑壳断路器,隔离功能为400A-630A,分路设置8路。采用具有隔离功能的DZ20系列160A-250A透明塑壳断路器,设置DZ20L(DZ15L)透明漏电开关或LBM-1系列作为漏电保护装置,具有欠压、过载、短路、漏电和断相保护功能,同时配备电能表、电压表、电流表和两套电流容器。漏电保护装置的额定漏电动作电流与额定漏电动作时间的乘积不应大于30毫安秒,最好选择额定漏电动作电流为7150毫安,额定漏电动作时间大于0.1S且小于等于0.2S,动作时间为延时动作类型。

总计配电柜示意图

总计配电柜端子板接触图

总计配电柜机柜门电气连接点图

四回路配电柜电气系统图

六个电路配电柜电气系统图

八个电路配电柜电气系统图
3
得分配电箱
(一)包括照明回路分配电箱(电源回路和照明回路分流分配)
DZ20系列透明塑壳断路器,内置200A-250A隔离功能,作为主开关(适用于total 配电箱并联断路器);电源分路和照明分路控制开关采用DZ20或KDM-1型透明塑壳断路器。DZ20或KDM-1透明塑壳断路器用作每个配电电路的控制开关。PE线连接螺栓和N线连接螺栓应根据实际需要配置。

点配电箱示意图

电气连接图

点配电箱电气系统图

包括塔吊回路分配电箱示意图
(端子板触点和电气连接点的示意图同上)

包括塔吊回路点配电箱系统图
(2)不包括照明电路点配电箱

8个电路点配电箱原理图
6个电路点配电箱包括塔式起重机电路
(端子板触点和电气连接点的示意图同上)

8个循环点配电箱系统图

6回路包括塔吊回路配电箱系统图
4
开关箱(根据一台机器、一个制动器、一个泄漏、一个箱设置)
(1)地面泵等大型设备的电源开关箱
配备KDM1或DZ20(160 A及380V以上)系列透明塑壳断路器作为控制开关,配置DZ20L系列透明漏电断路器或LBM-1系列漏电断路器。聚乙烯线路端子排由3个连接螺栓组成。

地泵等大型设备开关箱示意图

地泵等大型设备电气系统图
(2)塔式起重机及其他设备的电源开关箱
内置,同上

塔式起重机及其他设备电源开关箱示意图

塔式起重机等动力设备的开关箱系统图。
(3)3.0千瓦以下电力设备开关箱
DZ20(40A,380V)或SE、KDMI系列透明塑料外壳断路器作为控制开关,DZ15LE(40A)或LBM1系列透明漏电断路器,PE线端子排为4个连接螺栓。

40A以下电源开关箱示意图

电源开关箱端子触点和电气触点连接图

40A以下设备电气开关箱电气系统图
(四)5.5千瓦以上电力设备开关箱
根据受控设备的额定容量选择控制开关和漏电断路器。控制开关为DZ20(SE或KDM1)系列透明塑料外壳断路器,漏电断路器为DZ15L系列透明串联漏电断路器。聚乙烯电线连接有3个螺栓。
2
5.5千瓦以上设备开关箱示意图

5.5千瓦以上设备开关箱电气系统图
(5)照明开关箱
配有KDMT/2 (40A)断路器、DZ15L
40/290-40/290漏电断路器和3个聚乙烯线螺栓。

照明开关箱示意图

照明开关箱电气系统图
注:开关箱内漏电断路器必须选用额定漏电动作电流不大于30mA、额定漏电动作时间不大于0.1S、电流速断和电磁电机保证产品。
total 配电箱中型漏电断路器应为配电保护产品。
5
配电室布局应符合下列要求
(1) 配电柜前操作通道宽度,单排或双排背靠背布置不小于1.5m,双排面对面布置不小于2m;
(2) 配电柜后面的维修通道宽度,单排布置或双排面对面布置不小于0.8m,双排背对背布置不小于1.5m,如果某些地方有建筑结构突出部分,此时通道宽度可减少0.2m:
(3) 配电柜侧维修通道的宽度不得小于1m;
(4)配电室屋顶与地面的距离不得小于3m。
6
配电箱安装应满足以下要求
(一)固定配电箱,开关箱盒中心与地面垂直距离为1.1.6 m..移动盒与地面的垂直距离为0.8—1.6m..配电箱时,开关箱应安装在牢固稳定的支架上。
(2) 配电箱,开关箱在建筑物下降半径或塔吊臂旋转半径内必须做双层防护棚,并有隔离措施。
合作/贡献加小馒头老师:微信号祝隆秀
- 上一篇:标准化解释!配电箱设计和布线
- 下一篇:没有了
